Banyan Tree House
#architecture
Architects: Anonym
Area: 1600 m²
Year: 2024
Country: Thailand


Zero-JS Hypermedia Browser






Buritis House
#architecture
Architects: Aguirre Arquitetura
Area: 550 m²
Year: 2025
Photographs: Israel Gollino
Lead Architect: Alexandre Aguirre
Design Team: Alexandre Aguirre, Bruno Soler
Decoration: Alexandre Aguirre, Aline Henriques, Bruno Soler
Landscape Design: Alexandre Lico
City: Uberlândia
Country: Brazil


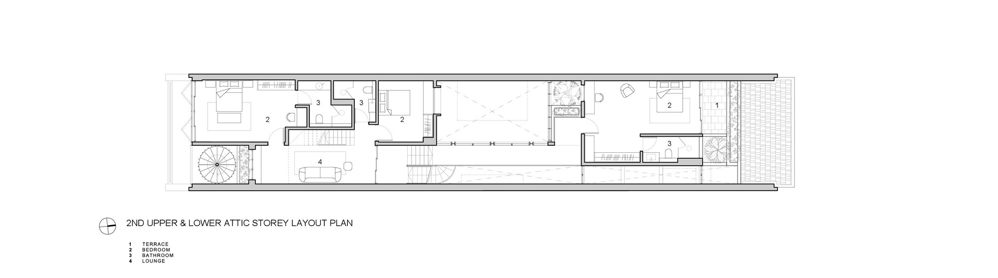
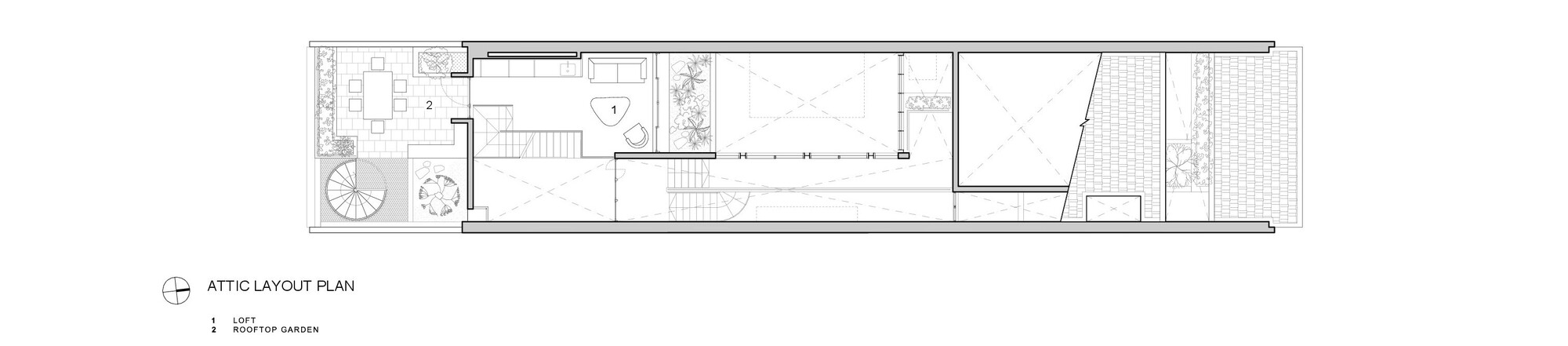
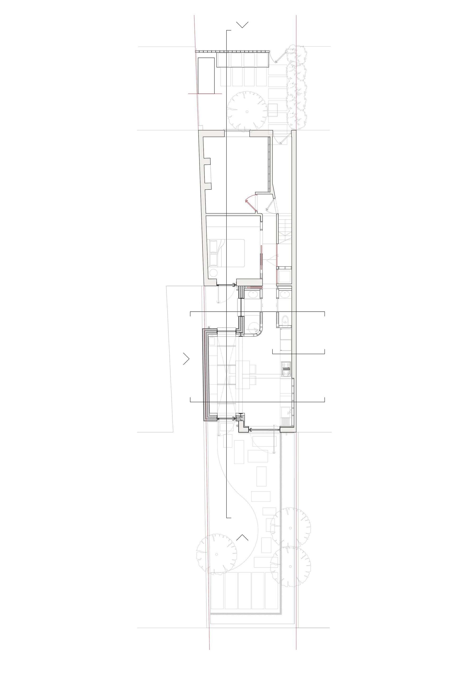
Emerald Sound House
#architecture
Architects: Luigi Rosselli Architects
Year: 2025
Photographs: Prue Ruscoe
City: Coogee
Country: Australia









