Hidden Home
#architecture
Architects: Luigi Rosselli Architects
Area: 900 m²
Year: 2024
Photographs: Prue Ruscoe, Piers Haskard
City: Neutral Bay, North Sydney
Country: Australia


Zero-JS Hypermedia Browser

















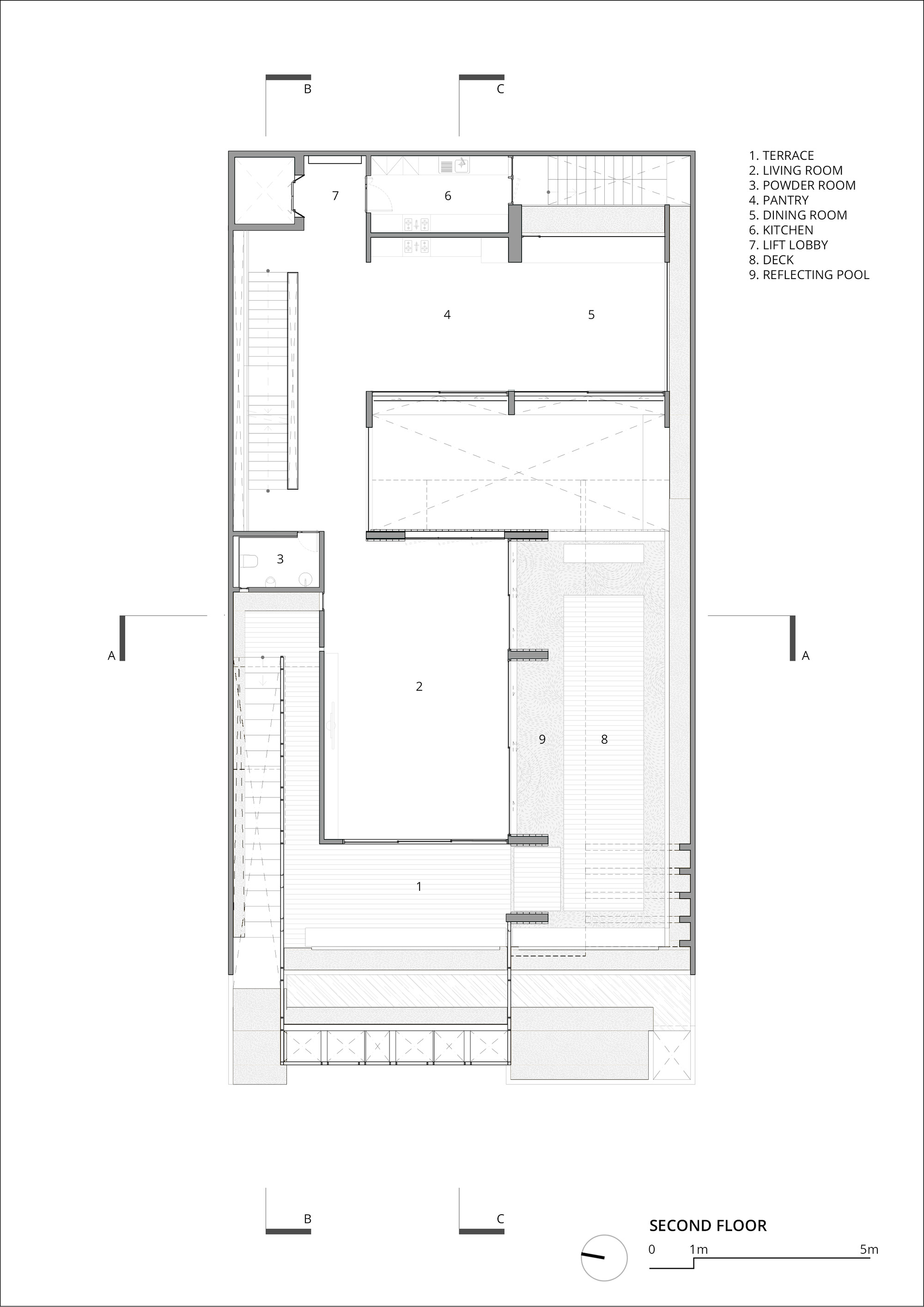
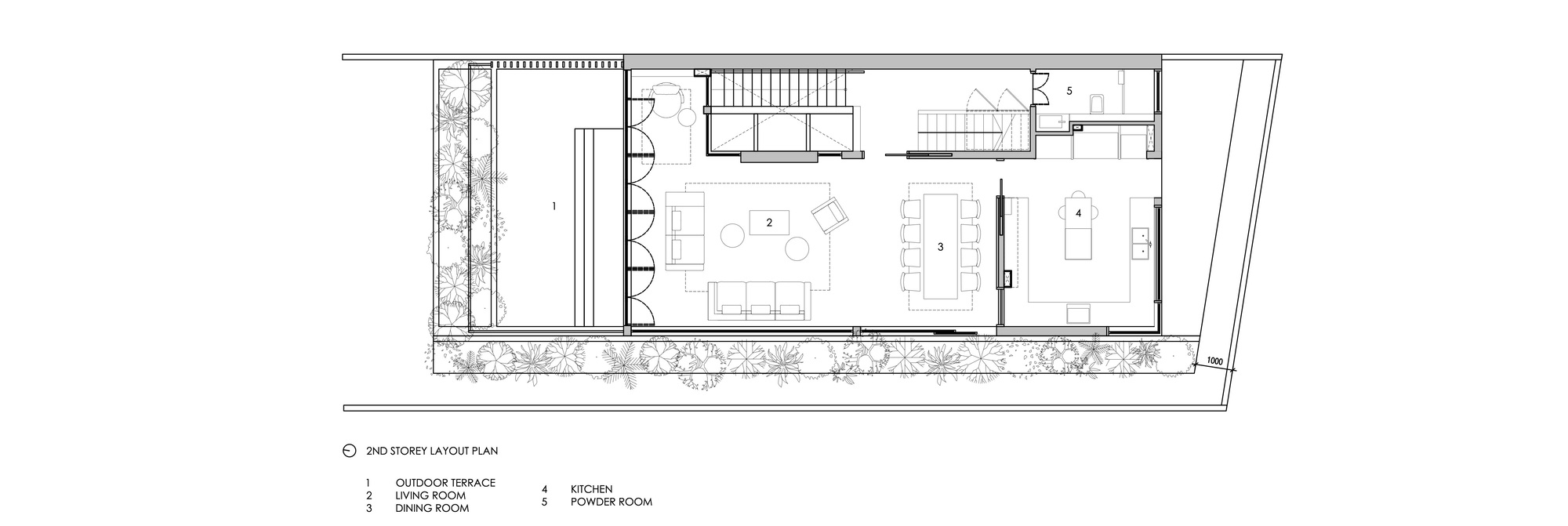
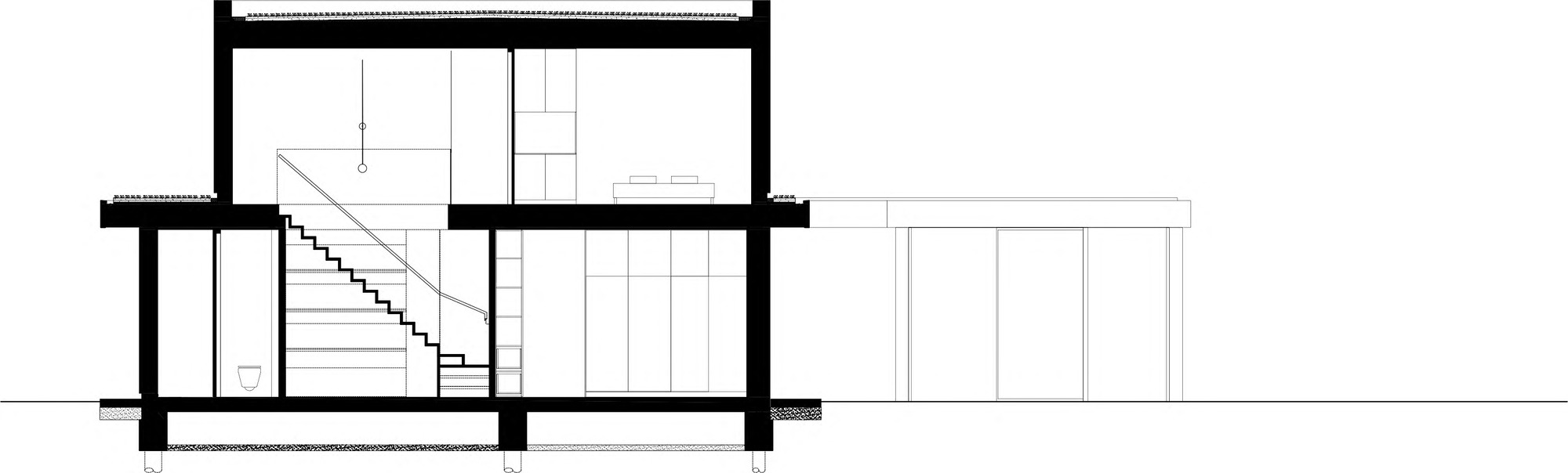
Tree Island is a family home that rises above its constraints, turning its limitations into its most striking features. Just four and a half meters wide internally, it maximizes space by reaching up high against the neighboring warehouse conversion to the south. A substantial void at the center of the home connects the living, dining, and kitchen spaces, its long, north-facing skylight illuminating every element of the family life cradled gently within.
A small courtyard offers a calm buffer between the existing home and the contemporary addition, while a glorious fig tree planted directly into the kitchen island blurs the connection between indoor and outdoor space.
A breathtaking void enshrines the core of this young family’s home, its most essential living, dining, and kitchen elements bathed in natural light and filled with greenery.
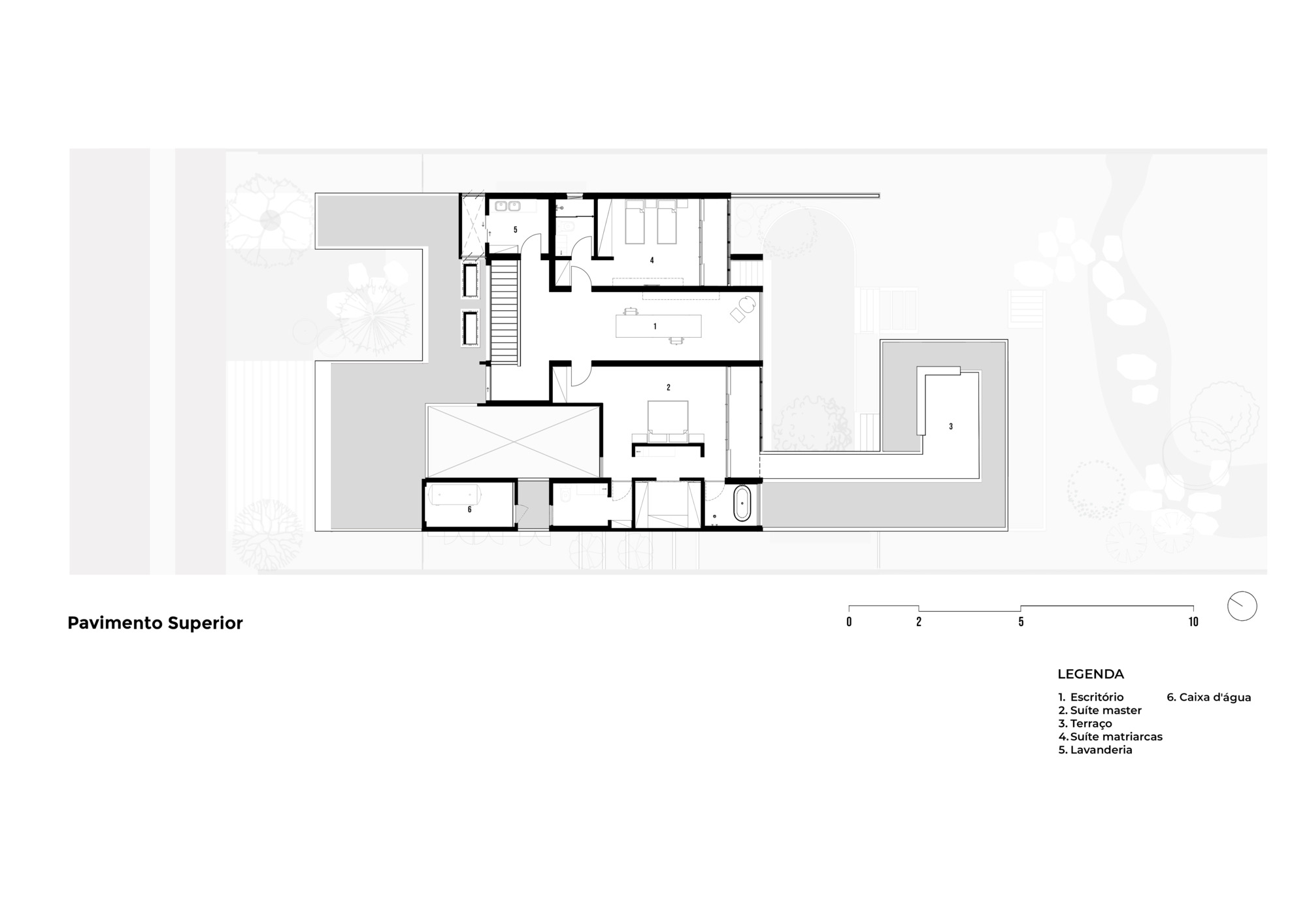
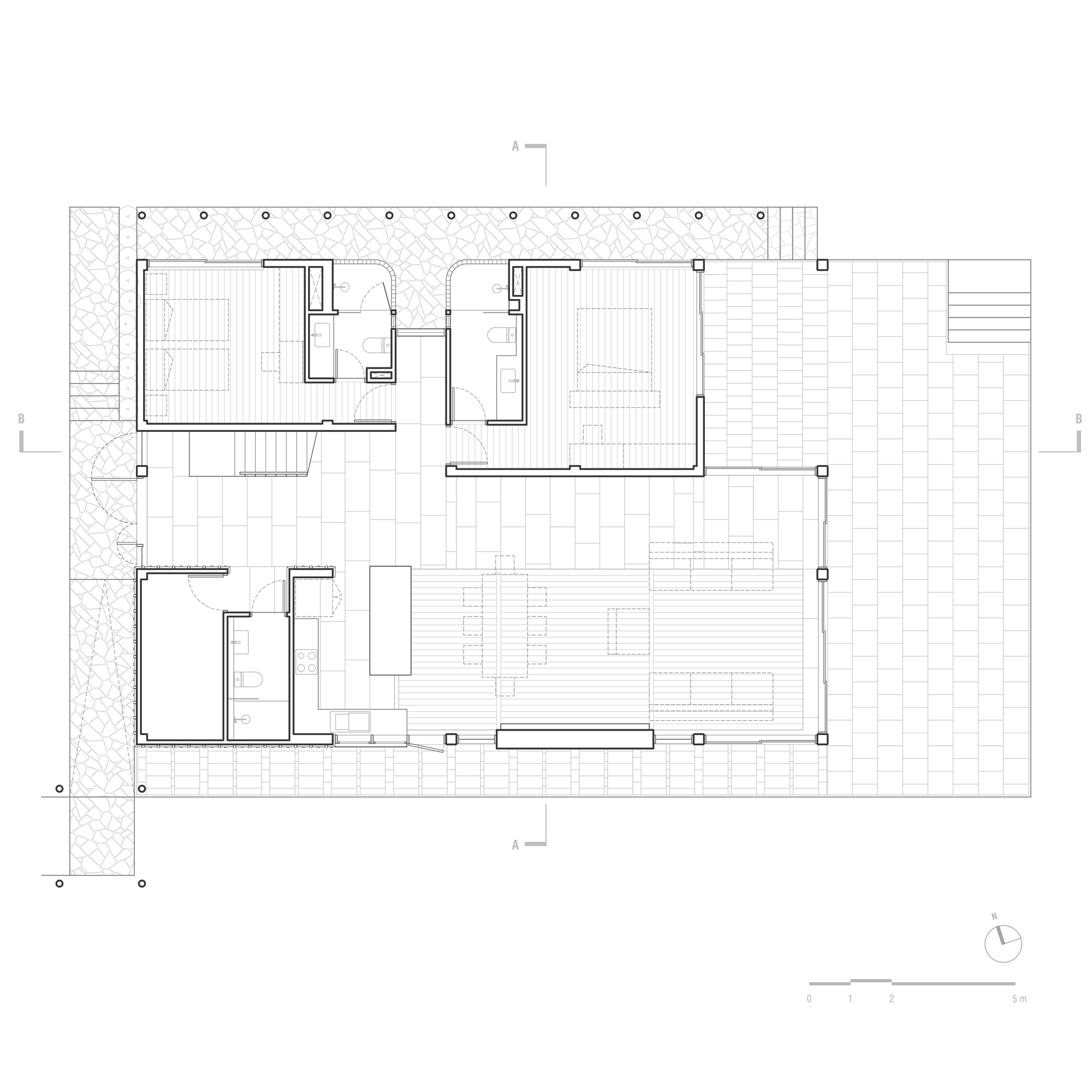
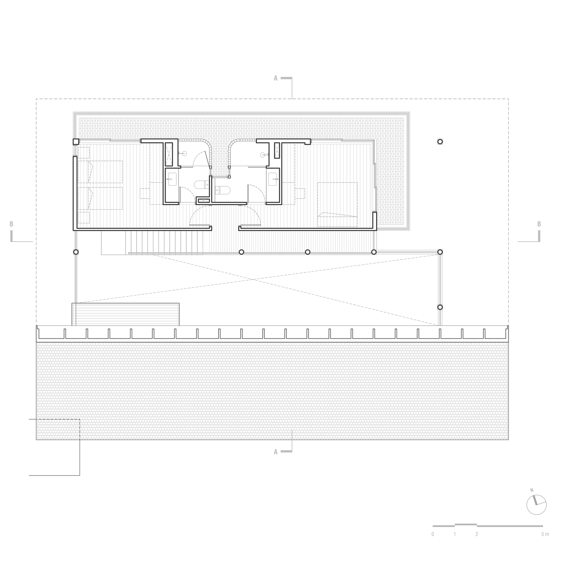
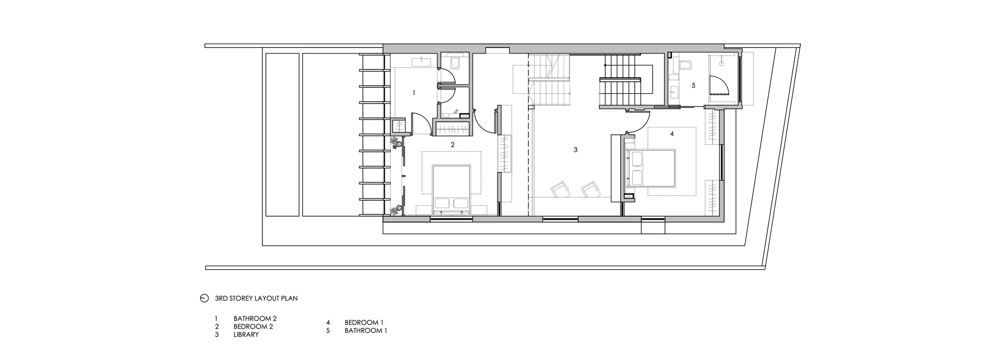
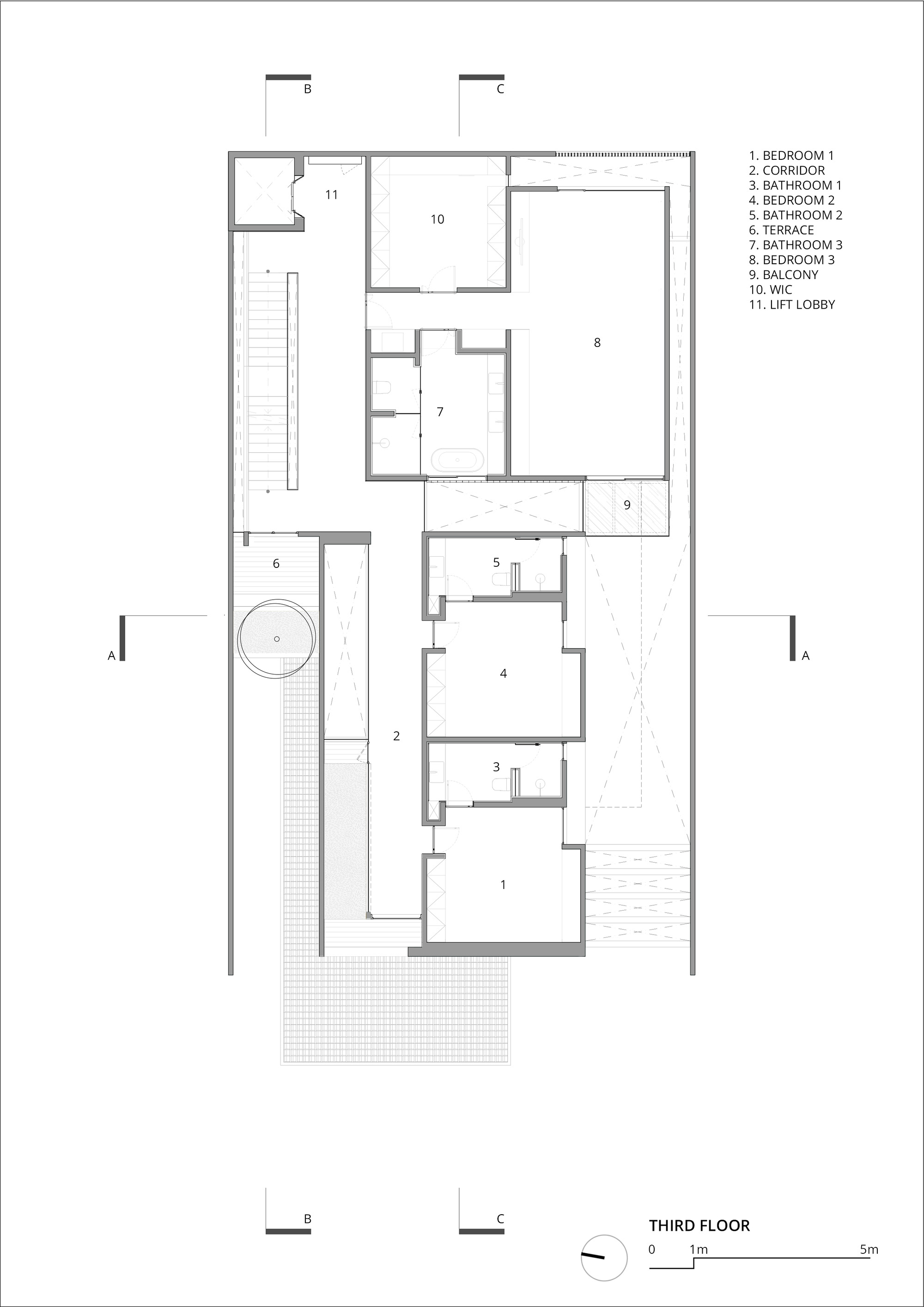
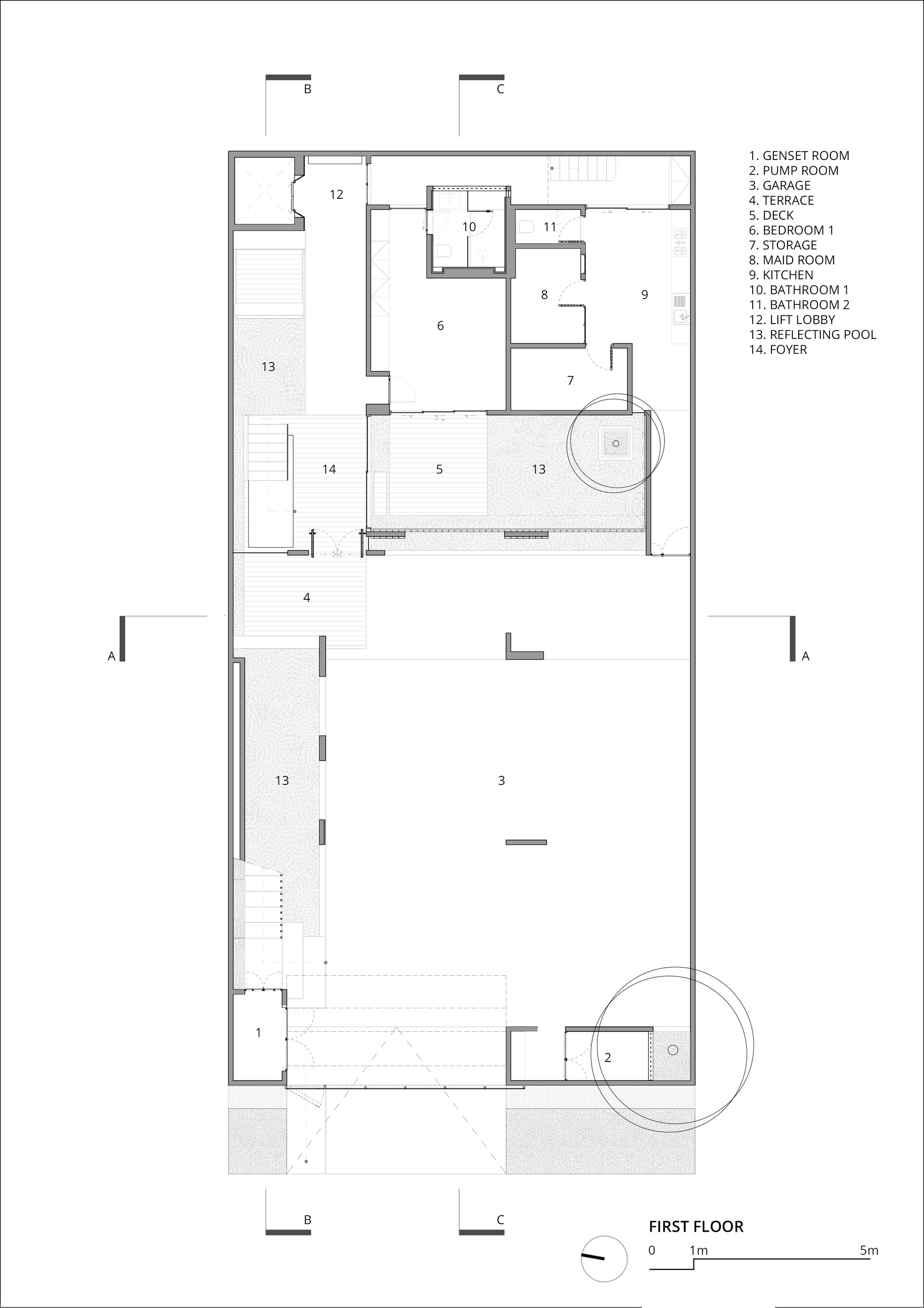
Sited in a heritage conservation area in Sydney’s inner west, Tree Island climbs higher as it moves back from the street, where from the rear it catches the eye with a staircase encased in curved, patterned brick. It houses three bedrooms, two bathrooms, and a study that opens onto a rooftop garden that feels as though it is nestled in the trees of its leafy street.
Concrete floors, dark marble counters, and a striking double-height brick wall provide a cool, robust material template contrasted by the kitchen’s rich timber joinery and softened with luxurious furnishings. The building’s thermal mass keeps it cool in summer and warm in winter, while the north-facing skylight provides year-round illumination.
Home to some of the inner west's most expansive spaces, Tree Island’s airy verticality transcends the limitations of its tight footprint.

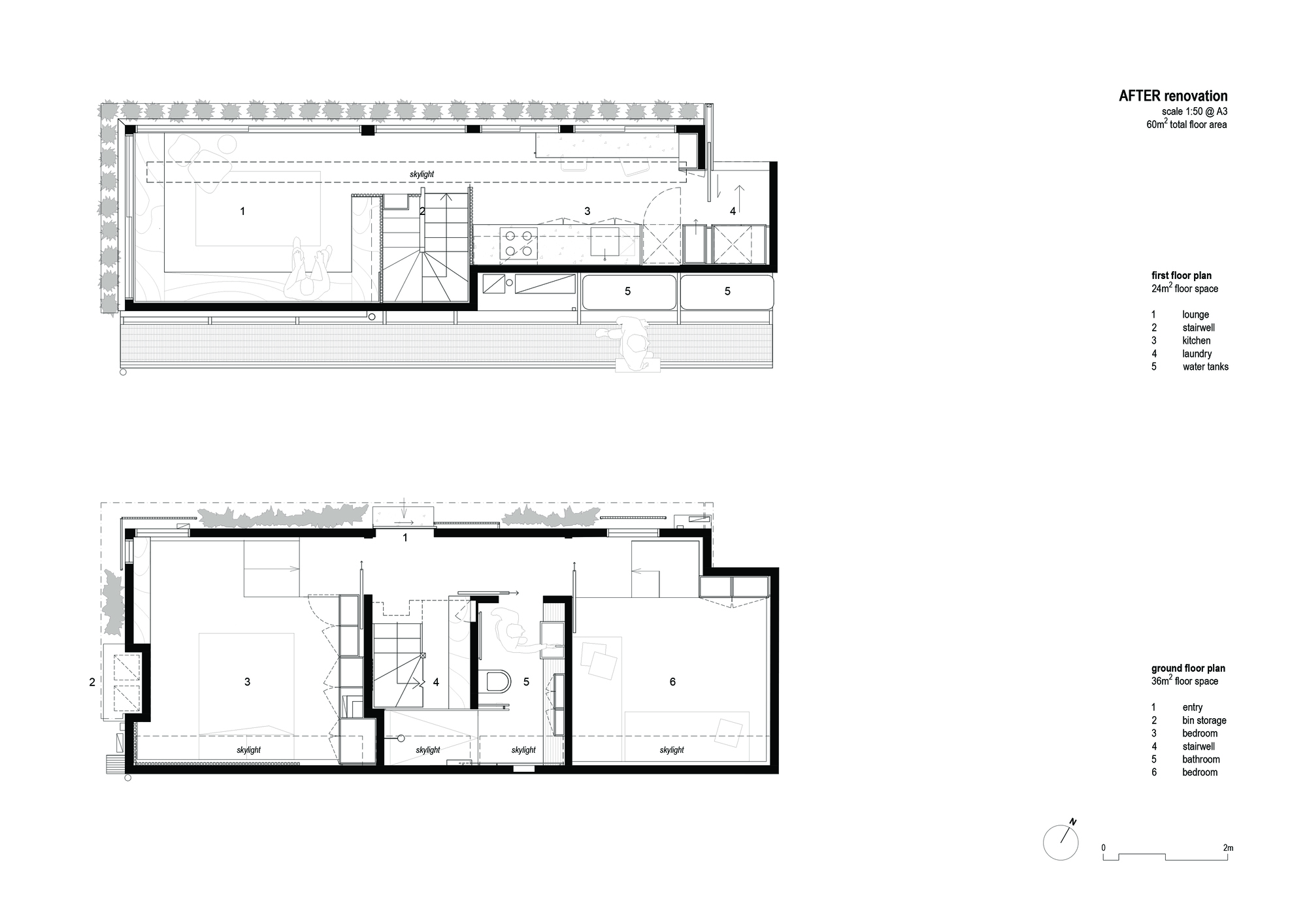
This little house, originally designed by architect David Luck, is a well-recognized, iconic part of its urban streetscape. However, despite being less than 10 years old, the exterior required considerable remediation for it to shine into the future, and the interior to be reworked to eradicate builder faults and fulfill our client/s needs. Our philosophy when either renovating or adapting architecture for reuse is to re-purpose what we can. We are respectful of what is good and analytical of what can be made of what is there, intervening decisively and of our time as/where needed.
That said, an architect and their architecture always predate any renovation, and we have worked on many significant projects by the contemporaries of William Wardell and the likes of Henry Bastow, Anatol Kagan, Roy Grounds, and Robert Grace, but never someone we know personally. David Luck is a friend and a wonderful architect. We contacted him, of course, and he wasn’t overly concerned about what we might do, even suggesting we pull it down and start again. Given the relative newness of the project and its brilliant concept of adding greenery to the streetscape, our role was to make good, let it be its best representation of self, and layer the original with what was needed to fulfill our client/s brief.
Our work consists of numerous interventions to resolve a set of specific concerns. Externally, this was done by remedying the galvanic corrosion of one metal to the other so as to ensure the longevity of the exterior, as well as resolving issues with the water pumps and irrigation of the façade’s garden beds. FRP security screens were also added to shield the interiors, not only physically but also visually. That said, there was little in terms of interior flair to be found.
What was there could have been more spatially challenged, poorly executed, and certainly not commensurate with the original concept for the house. Our internal interventions were, we hope, respectful and, while important to give the building longevity, sit comfortably inside the original form. Hinged doors were replaced with sliders to reclaim what little space there already was, and custom joinery was installed to address the lack of storage. The bathroom was remodeled to address a leaky shower and oddly located laundry cupboard, the former being opened up to create a sense of spaciousness that belies the building’s small footprint, and the latter being relocated to the once rarely used upstairs balcony.
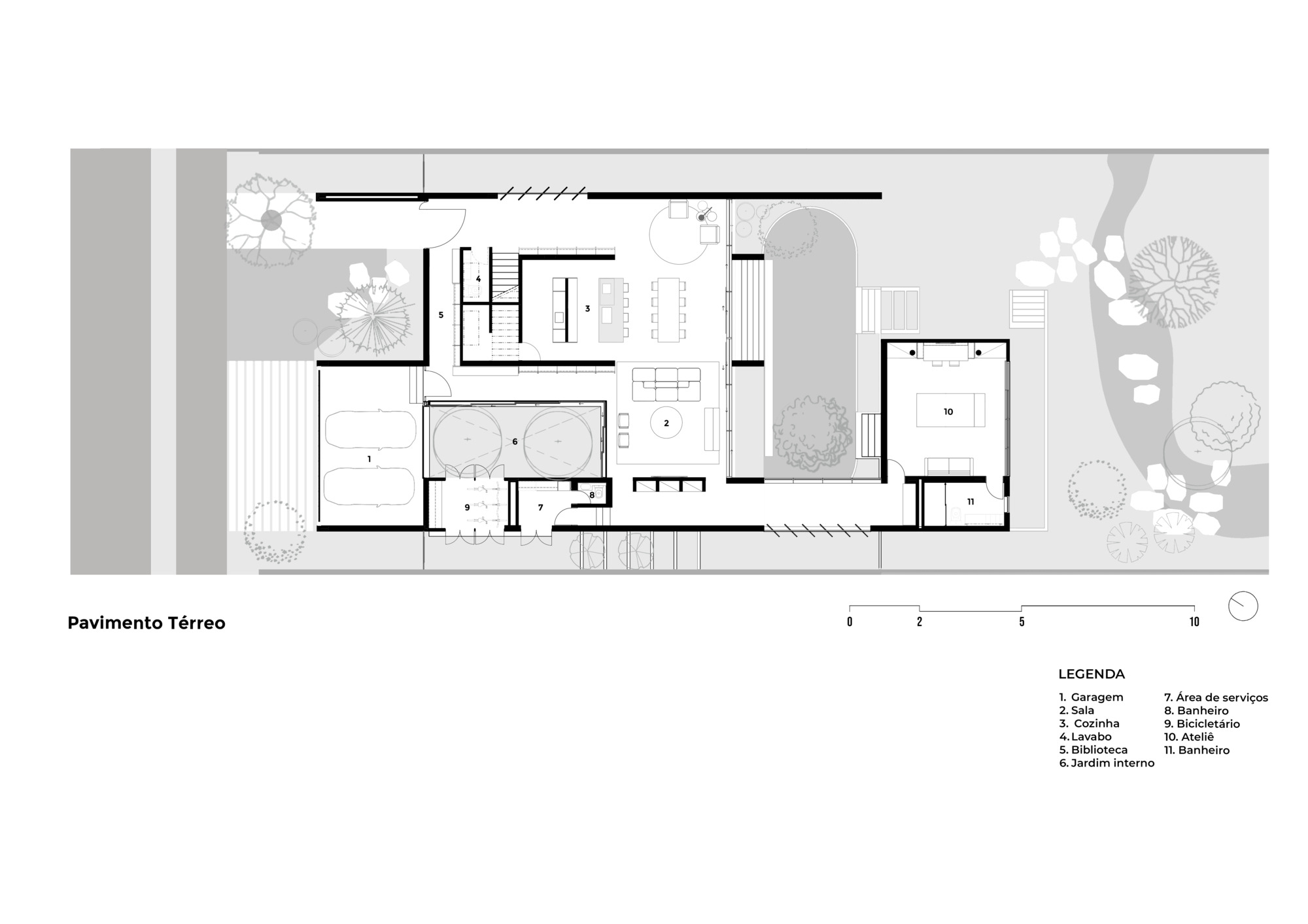
The dingy kitchen was reconfigured to provide more functionality and prep space so as to imbue a feeling of generosity and openness in such a small space, with the living area having custom seating built in to host the client/s dinner parties within the confines of such a small building. Ultimately, our aim was to convert this local landmark from house to home and make it work even harder on its pocket handkerchief site whilst always sympathetic to the original vision.