My poor browser update button hasn't seen any action in ages.
Architecture Daily
npub15qd4...gj2x
Your daily dose of architecture.
Notes (20)
House in Polônia Street
#architecture
Architects: Gabriel Kogan, Guilherme Pianca
Area: 977 m²
Year: 2025
Photographs: Pedro Kok
Country: Brazil


STEALTH House
#architecture
Architects: APOLLO Architects & Associates
Area: 214 m²
Year: 2025
Photographs: Masao Nishikawa
Country: Japan


Folly at Fair Hill
#architecture
Architects: Rever & Drage Architects
Area: 30 m²
Year: 2025
Photographs: Tom Auger
City: Asker
Country: Norway


Roxborough House
#architecture
Architects: gh3*
Area: 2690 ft²
Year: 2022
Photographs: Raymond Chow
City: Toronto
Country: Canada


The Cabin of Palette
#architecture
Architects: Advanced Architecture Lab[AaL], Wiki World
Area: 60 m²
Year: 2024
Photographs: Wiki World
Design Team: Mu Wei, Feng Zhaoxian, Wu Baorong, He Wen, Xu Xiaodong, Liao Xiaotian, Wang Yuanying
Illustrations: Wang Yuanying
City: Wuhan
Country: China


Villa BEC
#architecture
Architects: andrea pelati architecte
Area: 600 m²
Year: 2022
Photographs: Karina Castro
City: La Grande Béroche
Country: Switzerland


Entreverdes House
#architecture
Architects: 24 7 Arquitetura
Area: 445 m²
Year: 2024
Photographs: Adriano Pacelli
Text: Giuliano Pelaio
Country: Brazil


Hugo’s House
#architecture
Architects: Ian Moore Architects
Area: 115 m²
Year: 2024
Photographs: Clinton Weaver
City: Glebe
Country: Australia


Kross House
#architecture
Architects: FIGR Architecture & Design
Area: 380 m²
Year: 2024
Photographs: Tom Blachford
Country: Australia
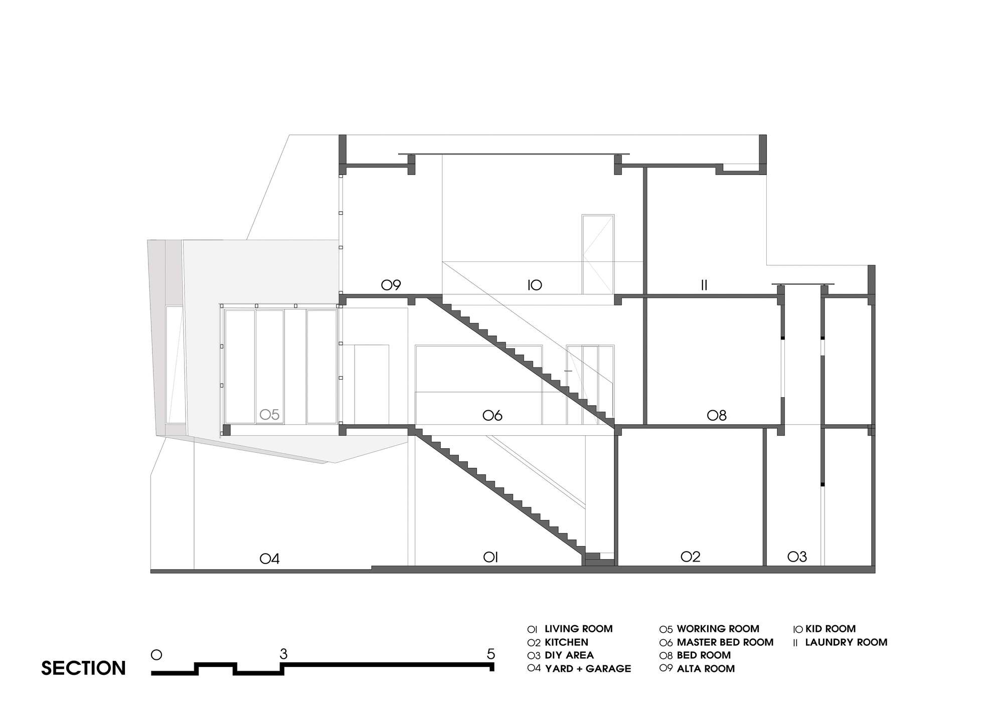
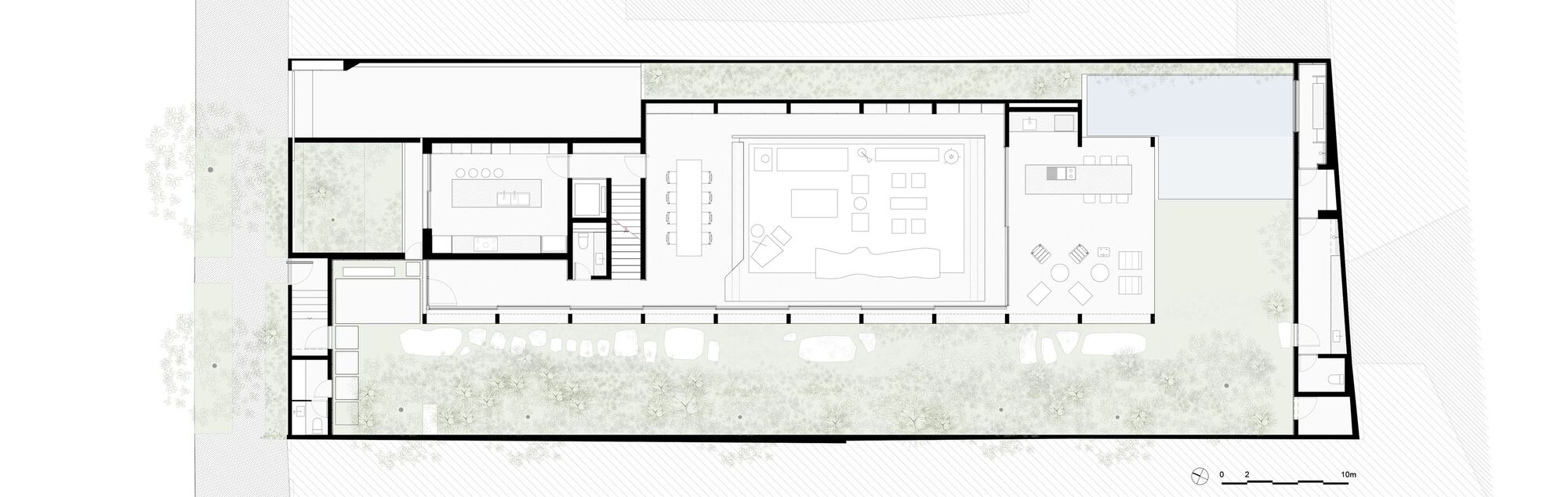
This single-storey residence offers a contemporary reimagining of pavilion-style living, sensitively integrated within its sloping coastal site. Anchored by natural rock formations and supported by a prominent V-shaped steel column, the house appears to float above the landscape. Divided into a series of distinct pavilions, the design provides separate living spaces and dedicated guest wings, balancing privacy and flexibility within a cohesive architectural form.
Drawing on the nostalgia of coastal living, the design evokes elements of traditional beachside dwellings while offering a sophisticated reinterpretation of contextual forms. Central to the plan is a multi-functional cross that organises the layout along north-south and east-west axes. This spatial intersection, reminiscent of the local Mount Martha boardwalk, creates an experiential journey through the house and site.
The 'in-between' zone formed by this cross functions as both an internal breezeway and an outdoor deck, facilitating a seamless connection between interior and exterior environments. This transitional space enables the house to expand or contract in response to seasonal conditions and changing functional needs, exemplifying flexibility in modern coastal living.
The material palette is dominated by timber, extensively used to clad both the external walls and interior surfaces. This approach fosters a strong sense of cohesion between the built form and the surrounding natural landscape. Beneath the floating structure, the undercroft has been reimagined as a secret garden, a secluded and contemplative space that utilises a typically underused area. This garden enhances the house's relationship to the landscape, creating opportunities for informal, spontaneous activities and reinforcing the dwelling's connection to the natural environment.
A series of operable sliding doors extends the living areas onto a triangular northern deck, allowing for true indoor-outdoor living. When opened, these doors blur the boundaries between the interior and exterior spaces, enhancing the sense of connectedness to the site. By positioning the main floor at the highest point of the site, the design captures sweeping views of the Mount Martha foreshore, while also accommodating an 18-metre lap pool beneath the house, extending along the north-south axis to the rear yard.
The design promotes sustainability, not only in its environmental considerations but also in encouraging an active lifestyle. Movement and exploration are facilitated through a series of pathways that engage the site. Sustainability features include timber-framed windows, double glazing throughout, a 20,000-litre water tank, solar panels, and battery storage.
The house is constructed using sustainable, locally sourced materials, with an emphasis on timber cladding, the elimination of plasterboard, and the use of low-VOC finishes. A native landscape garden has been designed in collaboration with MUD Office, incorporating coastal plant species to support and promote local flora and fauna. This approach fosters ecological resilience and contributes to the reestablishment of the local environment, enhancing both the sustainability and the experiential quality of the project.House on the Sand
#architecture
Architects: ARX Portugal Arquitectos
Area: 1200 m²
Year: 2023
Country: Portugal


Casaballin
#architecture
Architects: buck&simple
Area: 255 m²
Year: 2024
Photographs: Tim Pascoe Photography
Country: Australia


House with Gills
#architecture
Architects: beef architekti
Area: 316 m²
Year: 2023
Photographs: Matej Hakár
City: Bratislava, Slovakia
Country: Slovakia


SE Asia architecture looks the most impressive to me.
V+J House
#architecture
Architects: NAW Studio
Area: 260 m²
Year: 2022
Photographs: DinhR
City: Da Nang
Country: Vietnam


Villa Asknäs
#architecture
Architects: Reppen Vilson
Area: 350 m²
Year: 2024
Photographs: Reppen Vilson, Johan Dehlin
Office Lead Architects: Fabian Reppen, Samuel Vilson
Design Team: Reppen Vilson
City: Ekerö
Country: Sweden


House at the Foot of Mt. Asama
#architecture
Architects: norari works
Area: 122 m²
Year: 2024
Photographs: Yosuke Ohtake
Country: Japan


A New Journey Residence
#architecture
Architects: Wei Yi International Design Associates
Area: 155 m²
Year: 2024
Photographs: Wu,Kuo-Hao
Designers: Ferran Fang, Teresa Hong, Lucy Cheng
City: Taipei
Country: Taiwan


V House
#architecture
Architects: João Tiago Aguiar, Arquitectos
Area: 878 m²
Year: 2025
Country: Portugal


Banyan Tree House
#architecture
Architects: Anonym
Area: 1600 m²
Year: 2024
Country: Thailand

